Products
运行原理及特点 采用在同一层上用搬运台车或起重机平面移动,或使载车板平面横移实现存取停放车辆,亦可用搬运台车和升降机配合实现多层平面移动存取停放车辆。此种类型的设备大多为多层平面移动类,这种车库可以建
400-822-8286
13707400505
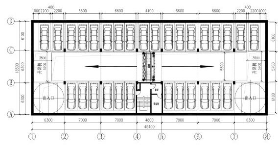
运行原理及特点
采用在同一层上用搬运台车或起重机平面移动,或使载车板平面横移实现存取停放车辆,亦可用搬运台车和升降机配合实现多层平面移动存取停放车辆。此种类型的设备大多为多层平面移动类,这种车库可以建成大型化、自动化的车库、容车密度大、存(取)车快捷,适宜建在大型住宅周围的地下,对机场、车站、繁华商业中心区、体育馆、办公楼等区域也适合。尤其是巷道长度长、层数不多的地下大容量存车库,用这种设备的技术经济性较好。


COPYRIGHT © hnyuanrui.com ALL RIGHTS RESERVED. 乐动平台 版权所有
湘ICP备16017744号